Ruparel House, Malabar Hills, Mumbai
JSW Ruparel House, Malabar Hills, Mumbai
G+14 sty Ultra luxury residential at Ridge Road, Malabar Hills (facing sea), Mumbai's most posh area, and attracts the ultra-wealthy. Architect intent proposed with iconic facade designs with high-quality finishes using bespoke façade systems. BES design team deeply involved with high quality well developed 3d Designs and visualisations, to help the client finalise the design intent.
Technical Challenges
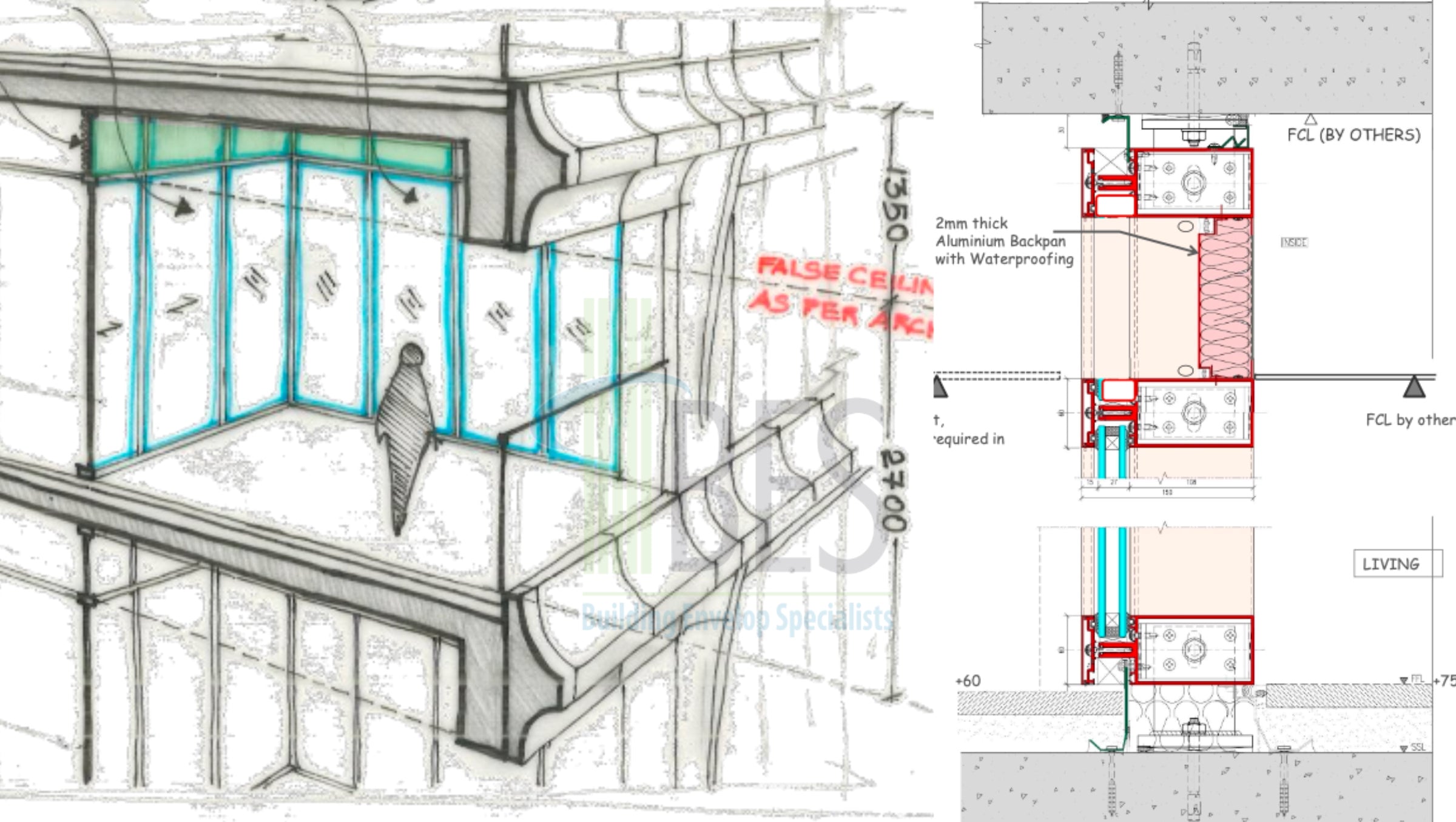
- 3d shaped GRC design, requires resolving complex junction and corner details.
- Polished GRC finished with new customized finishes, R&D by the BES team, never attempted on a facade cladding
- Achieving good weather-proofed details at glazing and GRC interfaces, with various corners and non-typical areas
- Window interfaces with GRC panels, achieving weather proof details
Project Team
Client : JSW Realty
Architect : Mazumdar Bravo / DSP
Project Status : Construction Stage
Scope : Typical Full scope covering Concept, DD, 3d Model, Tender Documentation and Construction stages
What We Did
Facade Design & Engg.
BES Value Add:
- Bringing extensive experiences with GRC / GFRC cladding
- Bespoke facade systems using windows with integrated (internal) glass railing
- Helps the client and architect to quickly finalize with well developed 3D design for visualization.
- Well-developed design and fully resolved details.
- Detailed engineered details for GRC with supporting steel structure.












