Evercare Hospital Chittagong
Evercare Hospital, Chittagong, Bangladesh
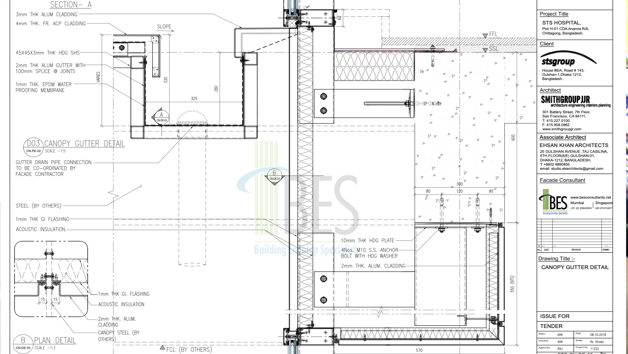
470-bed multi-disciplinary super-specialty, tertiary care hospital in Chattogram. BES has been appointed by the Client for detailed scope covering full spectrum of facade design from concept to site completion. BES scope includes developed customised facade designs and engineering to suit the project specific designs.
Punched windows with Aluminium shades are designed by BES with detailed engineering for facade contractor to implement. In addition to designs, BES team has played a key role in quality checking, visited fabrication works at China as the facade contractor procurement based out of China.
Evercare Hospital Chittagong facades engineers has designed with sunshades and energy efficient glazing systems. Extreme local weather conditions, call for robust facade design and engineered by BES
Project Team
Client : STS Group, Dhaka
Architect : SmithGroup JJR / EKA
Project Status : Completed (Year 2020)
Scope : Building Envelope design and Consultancy
What We Did
Facade Design & Engg.
BES Value Add:
- Local design and implementations experiences based on other projects completed in Bangladesh
- Optimisation and highly cost effective design solutions
- Experiences with large projects and suitable to help the project on-time completion
- simplified details to achieve better construction interfaces
- Stringent quality control implementations, inspections carried out at China factory
- BES team deeply involved with Site Inspections, able to bring high quality facade works











