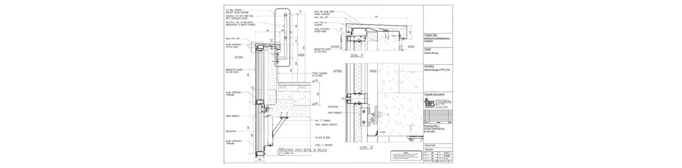
Wadala Commercial Tower-Mumbai
Wadala Commercial (Lodha), Mumbai
24 Sty tall high quality office building development with iconic commercial facade designs. The project has been completed with high quality finishes, Building envelope featured with iconic architectural engineering design using high quality materials and finishes.
BES team has closely collaborated with International Architects (WOHA) and has prepared well developed pre-construction designs involving resolving complex details.
Several new finishes and technologies were attempted, BES team closely involved from design and construction has helped the project achieved good quality of facade engineers in india works.
Project Team
Client : Lodha Group
Architect : WOHA Architects, Singapore
Project Status : Completed (Year 2018)
Scope : Building Envelope design and Consultancy
What we Did
Facade Design & Engg.
BES Value Add:
- Working experience and collaborating with international architects and designers
- Adopting advance design tools and techniques such as BIM/ BEIM (Building Envelope Information Modeling)
- Strong local technical team and site team for quality control
- Implemented stringent quality control at site
- Ability to achieve high quality finishes based on international experiences









