Luxury Residential, Mumbai
Luxury-Residential towers (Blu), Mumbai
Project Status : Completed
Proposed 260 M tall high end residential towers at Worli
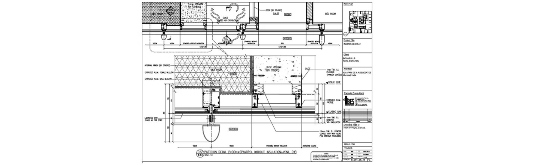
High quality luxury-residential towers completed with full floor height glazed facade throughout the building envelope to comply with modern aesthetics. Innovative facade designs with large openings for ventilations, curved corner glazing systems, high performance Low E glass for energy savings.
Towers are facade designed with all sides glazing to maximise overlooking sea view of all residential units. Large size windows with an innovative opening (push open) has been integrated, lead to options of natural ventilations without compromising visual / building elevations. All corners uses Curved Unitised Glazing system to offer better user experiences and visual appealing.
Project Team
Client : Indiabulls Group
Architect : Anupam De Associates
Status : Completed ( year 2020)
Scope: Building Envelope design and Consultancy
What We Did
Facade Design & Engg.
- 3D design (Revit platform) enables to generate numerous design options instantly. Good experience in facade project implementation.
- High quality advise to client top management for right decisions. requirements.
- Large Parallel open (push open) windows, first of its kind on high rise facades.
- Be Spoke facade systems for limited space restrictions on glazing outline
- Curved Unitised Glazing system- bespoke designed by BES and monitored fabrication and installation
- Luxury-residential towers, with iconic facades completed successfully implemented with BES deeper level of involvement.









