Lodha Altamount -Mumbai
Lodha-Altamount, Mumbai
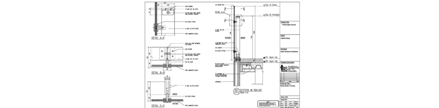
240 m tall high end residential tower (Lodha-Altamount-mumbai) at Altamount Road, Iconic building form proposed with high performance façade systems and shading feature. BES scope included with preparation of whole building envelope design (facade) 3D modelling
BES team has worked very closely with the principle architect (Hadi Teherani, a leading International Architect) for the unique facade designs. Crown structure of the building featured with complex sharp edged slim structural system, detailed engineered and designed by BES
Typical residential units were featured with glass railing covering beams and columns using point fixed system, integrated with Unitised Curtain wall systems of glazing. All rooms were provided with natural ventilations through operable windows
Project Team
Client : Lodha Group
Architect : Hadi Teherani
Project Status : Completed (Year 2018)
Scope : Building Facade design and Consultancy
What We Did
Facade Design & Engg.
BES Value Add:
- Design of customized façade solutions to suit well designed building aesthetics
- • Material optimization using advanced glass optimization technique using BES developed coding 3D tools
- • Help to achieve cost savings resulting less material wastages • facade designs customised to suit steel building structure
- Crown design of the lodha-altamount-mumbai, involves complex steel structural designs, which was detailed engineered by BES team
- Heavy duty glass doors were designed by BES with suitable hardware to withstand high wind pressures faced by sea facing apartments.











