Brigade-Tech Gardens

BES scope of Services
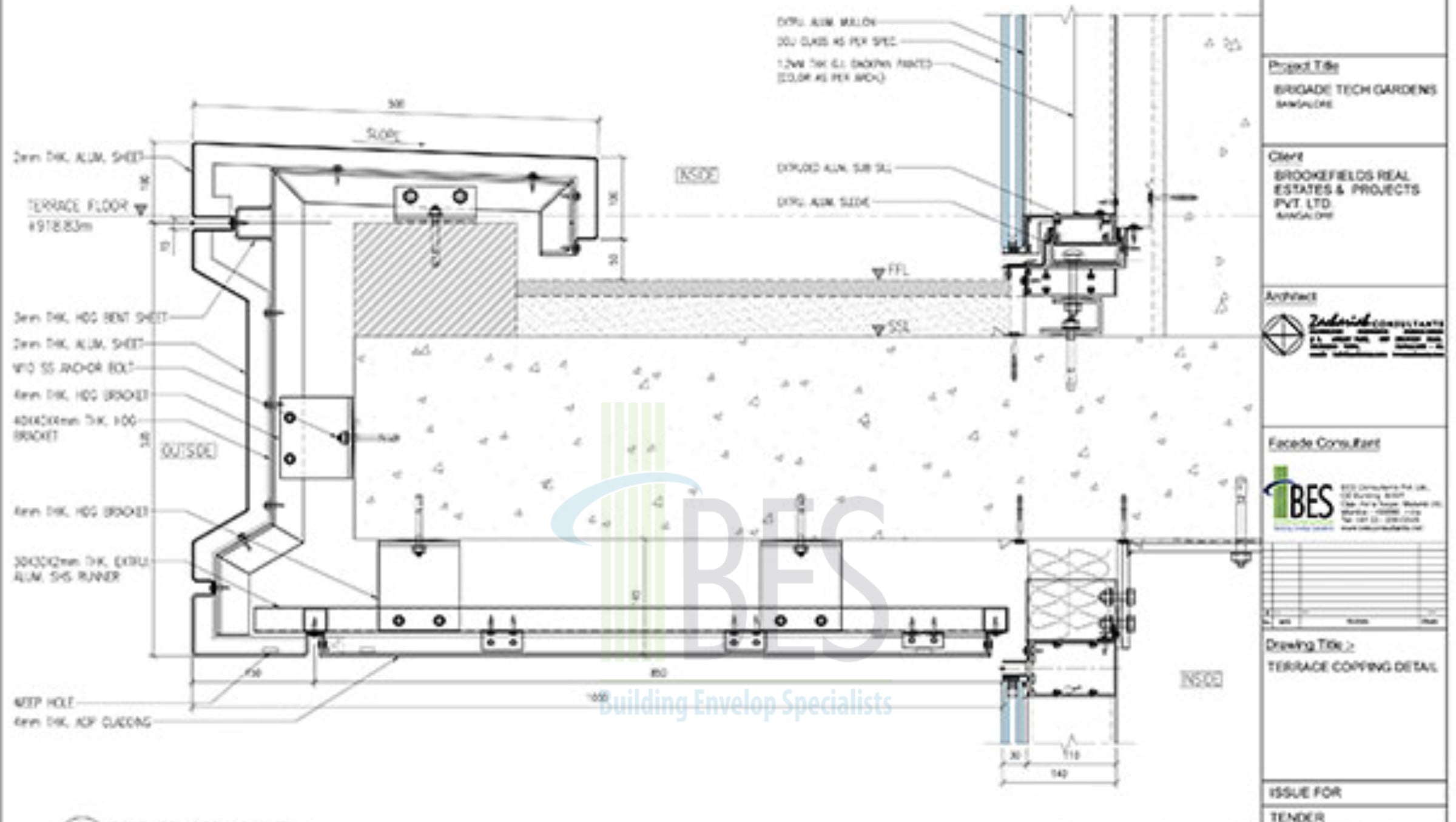
Facade Engineering & consultancy from concept to completion covering all buildings, Including Quality control and site management. Our scope covers all glass facades and cladding designs covering all building blocks of Brigade Tech Garden
Project Details :
Client : Brigade Group
Architect: Zachariah Consultants
Status: Completed 2020

Project Brief
Brigade-Tech-Gardens IT park consists of 4 blocks of G+9 sty commercial building development of approx. 3 Million sft development of Brigade Tech Garden. BES has developed bespoke glass facades designs with reveal Cladding, using large size glass panel. Simplified and well resolved pre-construction details has greatly helped successful implementation.
In addition to designs, BES team has played a key role in quality checking and site role, resulted high quality works achieved upon completion.

Key Design Elements
- Unitised system Glass Facades using large glass panel ie,. 3.6 M height high performance DGU. Resulted much lesser glass wastage.
- Punch window with Granite stone cladding
- Elliptical shaped Skylight for Atrium
- Entrance facade with double height glazing
- Large cantilevered canopies with steel structure and cladded
- Greenwall integrated with metal gratings for maintenance
BES high quality services has greatly helped not just designs, but including site implementation of this complex and iconic project. Fully resoled pre-construction details were prepared by BES, resulted better facade interfaces upon completions. Critical details such as slabs, columns, wall closure, terrace details were well developed at pre-construction stages by BES. This has resulted the site implementation quicker and flawless.
BES team has extensively involved with the site quality control and implemented stringent site testing and followups. Stringent site tests and checking methods were developed and implemented by BES, using dedicated site specialist. This has resulted high quality works which has been demonstrated with stringent site tests.
High quality facade works achieved
Well resolved & developed
bespoke Unitised facade system with reveal details.
3d Detailed designs
Greatly helped successful implementation
Optimisation & Highly cost effective design solutions
Less wastages and significant cost savings
Experiences with large projects
And resolving complex interfaces, helped the project completion with high quality













