M-Aryabhatta
M-Aryabhatta Commercial, Baner, Pune
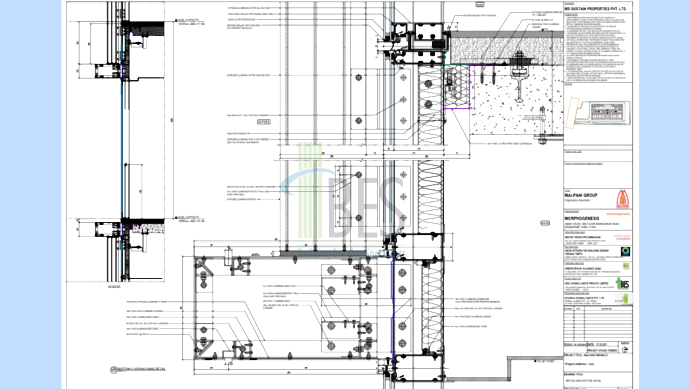
The M-Aryabhatta Commercial Building in Baner, Pune, is a landmark Grade-A commercial developmentcomprising Ground + 6 Parking Floors + 11 Office Levels + Terrace. Designed with a striking and modern architectural façade, the project features full-height DGU glazing, vertical aluminum fins, and rectangular cladding bands that create a bold, dynamic elevation.
BES (Building Envelope Systems) was appointed as the façade consultant for the project, providing end-to-end façade design, engineering, and BIM services—from concept design through site completion. BES optimized the façade design by standardizing glass panel dimensions, refining fin placements, and balancing aesthetics with cost efficiency.
The use of DGU (Double Glazed Units) enhances the thermal performance and energy efficiency of the façade, supporting sustainable building goals. BES’s BIM-based façade modeling helped achieve precision in detailing and minimized material wastage, resulting in a cost-effective and constructible façade system.
Through advanced façade engineering, 3D modeling, and value-driven design strategies, BES successfully delivered a high-performance building envelope that reflects modern architecture, efficiency, and sustainability—positioning M-Aryabhatta Commercial, Pune, as one of the city’s most refined commercial façades.
Project Team
Client : Malpani Group
Architect : Morphogenesis
Project Status : Construction Stage
Scope : Building Envelope designs and BIM Services
What We Did
Facade Design & Engg, BIM
BES Value Add:
- Bespoke facade system integrated with fins acting as shading elements.
- Project delivery thro Multi Discipline BIM, detailed façade BIM with LOD 300
- Highly optimized Unitized Curtainwall system with reduced Aluminium weight/ Sqm.
- Be-spoke Entrance facades with various design options proposed with sleeker and iconic designs by BES
- Detailed Engineering and well developed drawings, helps the facade contractor to implement efficiently







